
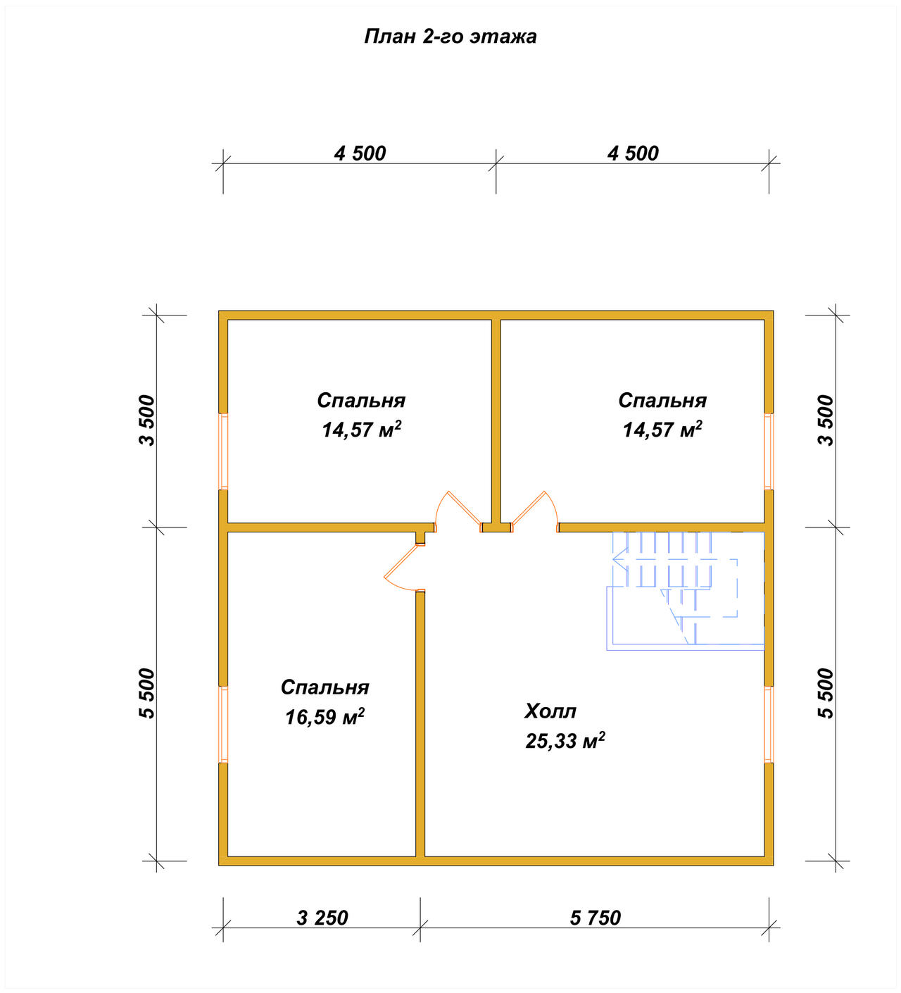
Планировка

- Гарантия 3 года
- Любые изменения
- Доставка по всей России
- Собственное производство
Полутораэтажный дом из бруса ДБ №49
Выберите тип и сечение бруса
1 839 000 ₽Выберите фундамент
+0 ₽Выберите кровлю
+0 ₽Уважаемые заказчики, стоимость указана на строительство домов «под усадку», без отделочных работ. Подробности уточняйте у менеджера.
Порядок работ
Чтобы было проще понять, как строится взаимодействие нашей компании с клиентами, мы разбили весь процесс на следующие важнейшие этапы
1. Подбор проекта
В каталоге готовых домов и бань вы выбираете проект, настраиваете материалы и получаете точную стоимость
2. Подписание договора
Мы встречаемся на участке, оцениваем условия и фиксируем цену материалов и работ в договоре
3. Производство бруса
Брус изготавливается под проект. Предоплата 1–2%. Производство — 2 недели, сушка — ещё 2
4. Доставка и сборка
Согласовываем доставку и старт работ. Фундамент — 1–2 недели, сборка дома — 2–4. Строим круглый год
5. Усадка дома
Перед отделкой дом проходит усадку: 6 месяцев для сырого бруса или 2 — для сухого
6. Финальная отделка
После усадки выполняем финальную отделку: шлифовка, покраска, установка окон, дверей и инженерных систем






