
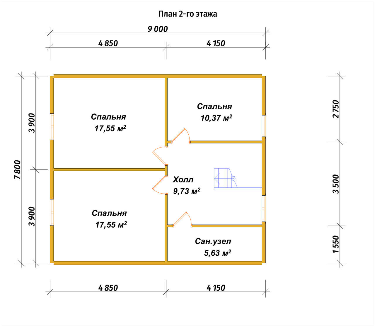
Отзыв заказчика о строительстве дома из профилированного бруса 145х145мм по проекту ДБ#4
Домодедовский район, КП Шишкин Лес


Уважаемые заказчики, стоимость указана на строительство домов «под усадку», без отделочных работ. Подробности уточняйте у менеджера.
Посмотрите фотоотчеты со строительных площадок

Домодедовский район, КП Шишкин Лес
Чтобы было проще понять, как строится взаимодействие нашей компании с клиентами, мы разбили весь процесс на следующие важнейшие этапы
В каталоге готовых домов и бань вы выбираете проект, настраиваете материалы и получаете точную стоимость
Мы встречаемся на участке, оцениваем условия и фиксируем цену материалов и работ в договоре
Брус изготавливается под проект. Предоплата 1–2%. Производство — 2 недели, сушка — ещё 2
Согласовываем доставку и старт работ. Фундамент — 1–2 недели, сборка дома — 2–4. Строим круглый год
Перед отделкой дом проходит усадку: 6 месяцев для сырого бруса или 2 — для сухого
После усадки выполняем финальную отделку: шлифовка, покраска, установка окон, дверей и инженерных систем